-
Actualitat i èxits que ens impulsen
Notícies

Programa FPO DUAL de Prodis.
Estem molt contents de poder col·laborar i participar en el programa FPO DUAL de l'entitat de Prodis. Hem ...

Bon Nadal i Feliç 2023!
Baldó Serveis i Obres us desitja unes bones festes de Nadal i un molt bon inici d'any nou.

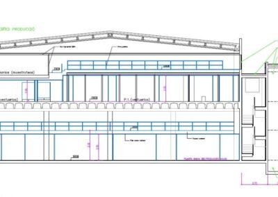
Adjudicació Laboratoris Rubió.
Ens han confirmat l'inici d'un nou projecte. La rehabilitació d'una nau industrial al carrer Industria de ...

Baldó BSO al carrer Gràcia de Sabadell.
Finalitza la construcció d’un edifici plurifamiliar de nova planta al carrer Gràcia de Sabadell amb uns resultats ...

Primera pedra del Vapor de Prodis.
Hem assistit molt il·lusionats a l'acte de la col·locació de la primera pedra del Vapor Cortès de Prodis, un acte ...

Pavelló Esportiu Escoles Garbí.
Avancen les obres al pavelló esportiu per a l'Escola Garbí a Esplugues del Llobregat. Un cop finalizada ...

Baldó BSO a Mútua Terrassa.
Hem finalitzat el projecte de reforma de les noves dependències del servei d'Urgències de Mútua de Terrassa.

Recta final a Sabadell.
Hem entrat ja en la darrera fase, estem treballant en els últims repassos i ajustos per tal de finalitzar aquesta ...

Adjudicació Prodis.
Hem rebut una molt bona notícia. Ens han adjudicat la rehabilitació de 3 naus del Vapor Cortès a Terrassa en ...

BSO finalitza la reforma integral d’una nau a Polinyà.
Finalitza el projecte de reforma integral d'una nau industrial on s'ubica la seu central de l'empresa Aranow ...

Finalització Smilics Fase 3.
Vam iniciar la Fase 3 d'aquest projecte el dia 2 de juny de 2020 i avui donem per finalitzada la construcció de la ...

Baldó Constructora avança a Major de Sarrià.
Estem gaudint molt en l'execució d'aquest projecte ja que és tot un repte pels materials i sistemes constructius ...

Baldó BSO a Esplugues.
Estem treballant en la construcció d'una nova planta farmacèutica per a l'empresa Ferrer d'un un total de 5.600 ...

Bon Nadal i feliç 2022.
Des de BSO us desitgem unes molt bones festes i una entrada d'any nou plena d'il·lusió i energia.

BSO finalitza les obres al Masnou.
Finalitza la construcció de dos blocs plurifamiliars d'habitatges de nova planta per a l'empresa Ambar Immobiliària.

Ampliació a Mútua de Terrassa.
Hem ampliat el projecte de reforma a l'interior de les instal·lacions de Mútua de Terrassa treballant en la ...
No results found.
